Your Home Across NAIA Terminal 1, Sucat Parañaque.
Gold Residences by SMDC
A 11.6-hectare master-planned community with 8 iconic buildings.
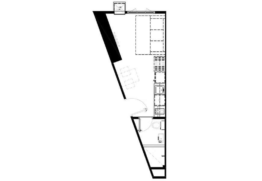
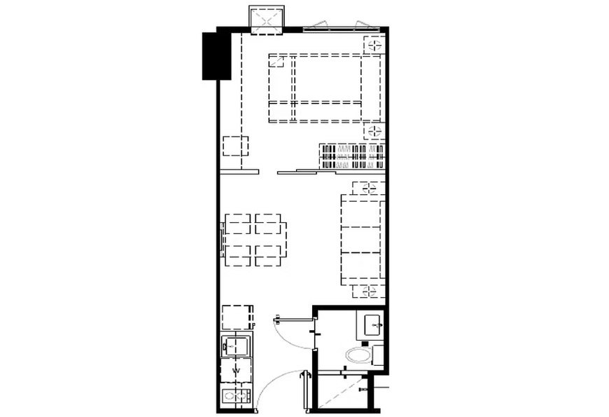
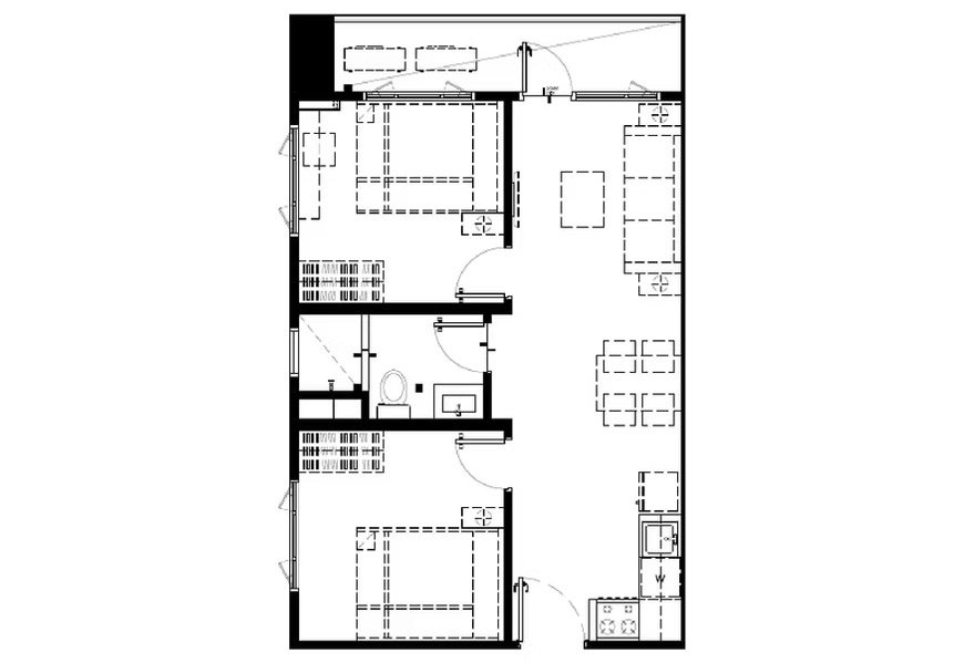
Gold Residences - Floor Plans
Gold Residences will consist of studio units, one-bedroom units, and two-bedroom units. Families looking to upgrade to a new condo for their growing needs and thriving lifestyle will find in Gold Residences an invitation to live their dream vacation all year round.
With fine quality finishes, large open plans, and abundant natural light and ventilation, an unparalleled quality of life is presented by every aspect of Gold Residences SMDC.
The units in Gold Residences NAIA are thoughtfully designed for families, providing the perfect balance of comfort and function. With well-planned layouts and quality construction, each home is created to suit every family’s needs. At a reasonable price range, SMDC ensures that what you receive at Gold Residences Parañaque is truly worth more than your investment.
Gold Residences SMDC is an excellent choice for Filipinos seeking simple yet elegant community living. For those dreaming of owning a home with their families, Gold Residences offers a range of condominium packages to choose from.